Works

HOME | リノベーション作品事例 | 白沢のリノベーション

まちなかの家リノベーション

大規模リノベーション F様邸

当社で新築させていただいてから41年、しっかりとした造りで今日まで特別なこともなく過ごしていた中、子供達も巣立ち、いろいろな部分の経年劣化や水廻りの老朽化等もあり、今後の生活環境を快適に過ごしていけるようにと、大規模リフォームを決意されました。
屋根の全面葺き替えやバルコニーの防水処理、外壁の塗装やサッシやガラス面のペアガラス交換等、お客様のご要望に合わせて、すべての劣化部分をクリアーにしていきました。
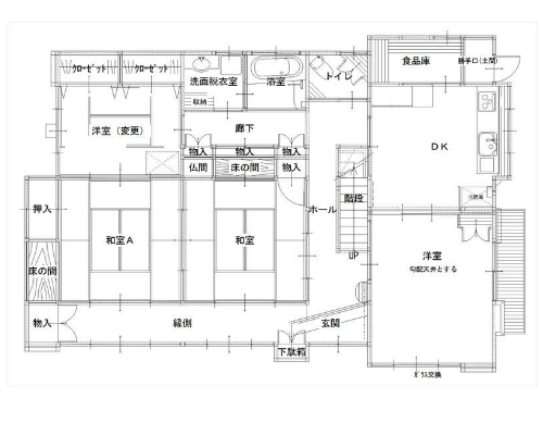
間取りでは、今まではDKがくつろぎの居間として利用していた部分を、DKと洋間の一体化を図り、奥様の強いこだわりが詰まったキッチンや食器棚、食品庫の新設を再現。全ての水廻りも新しくし、内装部分も無垢材を使う等、これからの住まい方を快適にすごせる家ができました。

物件詳細

建築地 群馬県佐波郡玉村町
床面積 延床面積156.66㎡
工法 在来木造2階建て
設計者 北爪 俊之
大工 萩原 一真

屋根:ガルバリウム鋼板 横葺き 葺き替え 
(雨樋新設・軒天貼替ケイカル板AEP)
外壁:モルタル下地 ソフトリシン吹付
床:カバザクラ無垢材15㎜
壁:珪藻土塗替え・クロス新設
天井:クロス新設
 

リフォーム後1F

リフォーム前1F

リフォーム後2F

リフォーム前2F

リフォーム後立面

リフォーム前立面


 

 

BEFORE  リノベーション工事前